Menü
Gepflegtes Mehrfamilienhaus am Stadtwald
Objektart:
Mehrfamilienhaus
Kaufpreis:
485.000 €
Provision:
3,57 % inkl. MwSt.
Wohnfläche:
ca. 289 m²
Grundstück:
374 m²
Baujahr:
1958

Objektbeschreibung

­

Das Mehr­fami­lien­haus wur­de 1958 auf einem Eck­grund­stück er­rich­tet und ist beid­seitig an­ge­baut. Es ist in 5 Woh­n­ein­heiten un­ter­teilt und voll ver­mie­tet. Zu dem Haus ge­hört außer­dem eine Ga­ra­ge, die eben­falls ver­mie­tet ist. Die Woh­nungs­größen lie­gen zwi­schen ca. 35 m² und 75 m². Zwei der fünf Woh­nun­gen ver­fü­gen über je einen Bal­kon, wo­bei den Be­woh­nern zu­sätz­lich ein Gar­ten hin­ter dem Haus zur Ver­fü­gung steht.

Die Woh­nun­gen sind mit weißen Türen und weißer Sa­ni­tär­ein­rich­tung aus­ge­stat­tet.

Die Fens­ter in den bei­den Erd­ge­schoss­wohnun­gen sind mit Roll­läden aus­ge­stat­tet. Bei al­len Fens­tern han­delt es sich um 2-fach ver­glas­te Kunst­stoff­fens­ter.

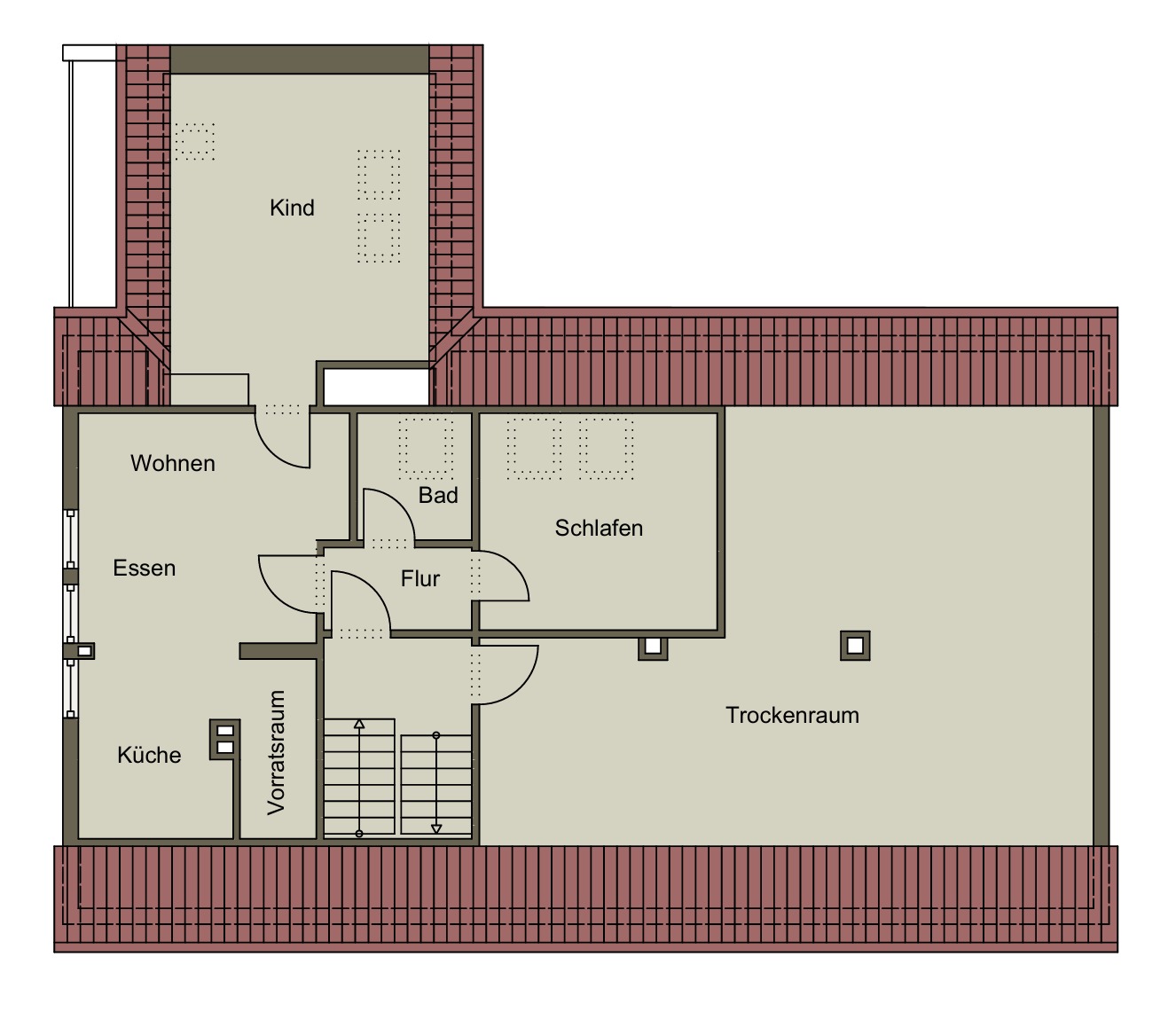
Im Dach­bo­den be­fin­det sich ak­tu­ell ein Tro­cken­raum, der ein Aus­bau­po­ten­tial für eine wei­te­re Woh­nung mit ca. 40 m² bie­tet.

Der Ge­samt­ein­druck des Mehr­fa­mi­lien­hau­ses ist ins­ge­samt ge­pflegt und freund­lich. Hier­zu trägt auch das hel­le Trep­pen­haus bei.

Lage

­

Das ge­pfleg­te 5-Fa­mi­lien­haus be­fin­det sich am Ran­de eines Misch­ge­bie­tes, um­ge­ben von einer ruhi­gen, vor­wie­gend wohn­lich ge­präg­ten Nach­bar­schaft. Die zen­tra­le La­ge bie­tet kur­ze We­ge zur Duis­burger Innen­stadt, zum Stadt­wald mit dem be­kann­ten Zoo so­wie zur Uni­ver­sität.

Ein­kaufs­mög­lich­kei­ten für den täg­li­chen Be­darf sind be­quem fuß­läu­fig er­reich­bar. Die Ver­kehrs­an­bin­dung ist op­ti­mal: Das na­he­ge­le­ge­ne Au­to­bahn­kreuz „Kai­ser­berg“ er­mög­licht eine schnel­le An­bin­dung an die Haupt­ver­kehrs­we­ge und der Duis­burger Haupt­bahn­hof ist in we­ni­gen Mi­nu­ten er­reich­bar.

Kontakt